Espace propriétaire
fr

Votre recherche

Nouveauté
Floirac (33270)

2 pièces - 42 m²

À vendre – T2 avec parking – Résidence sécurisée Les Terrasses de Flore – Floirac

162 000 €
Ref : 371
A propos de ce bien

Dans la résidence calme et parfaitement entretenue Les Terrasses de Flore, découvrez ce charmant appartement T2 situé au 3ᵉ étage, offrant un cadre de vie serein et agréable.

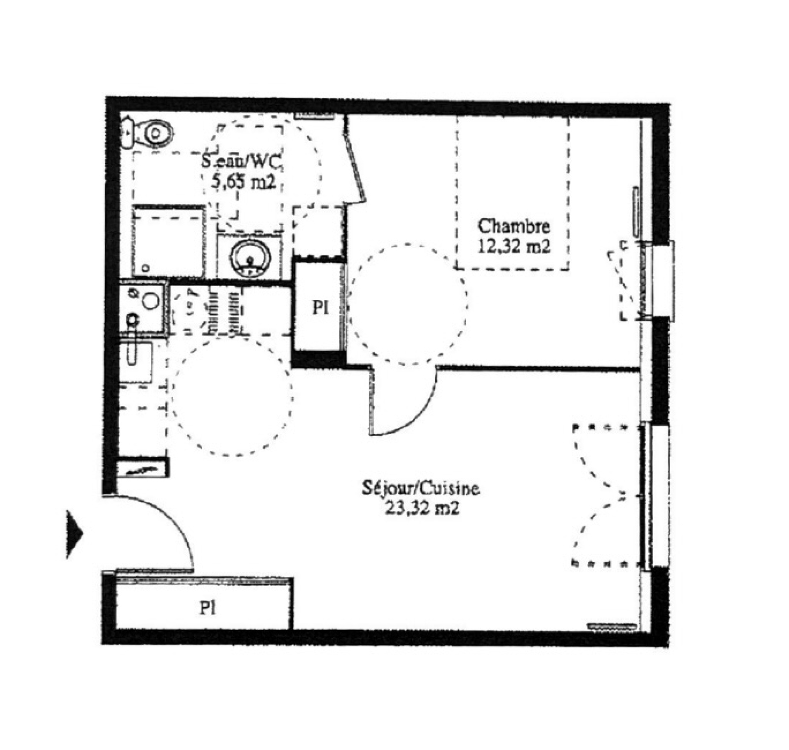
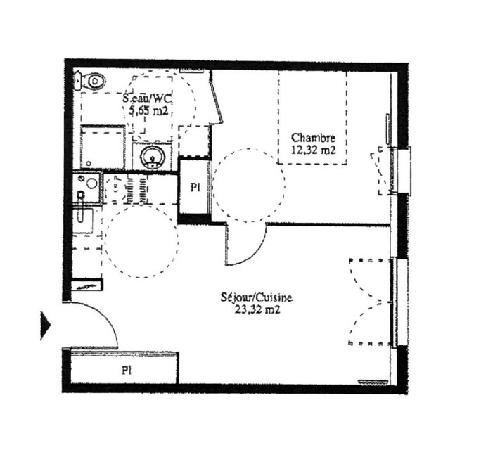
L’appartement se compose d’une entrée avec rangement, d’un séjour lumineux et cuisinette ouverte (non équipée), d’une chambre avec placard intégré, ainsi que d’une salle d’eau avec douche et WC.

Vous bénéficierez également d’une place de parking extérieure privative au sein de la résidence sécurisée.

Idéalement situé, le bien profite d’un environnement paisible tout en étant à proximité immédiate des transports (bus H et 24), des pistes cyclables et de plusieurs espaces verts et parcs, offrant un cadre de vie pratique et verdoyant.

DPE C/C. Honoraires charge Acquéreur 12000€ soit net vendeur 150 000€ - Les informations sur les risques auxquels ce bien est exposé sont disponibles sur le site Géorisques : www.georisques.gouv.fr

Descriptif de ce bien
Général
Code postal 33270
Surface loi Carrez (m²) 41,29 m²
Nombre de chambre(s) 1
Nombre de pièces 2
Etage 3
Ascenseur OUI
Vue dégagée sur la nature
Détails
Nb de salle d'eau 1
Cuisine Kitchenette
Mode de chauffage Gaz
Type de chauffage TRAD_TYPE_CHAUFF_CHAUDIERE
Format de chauffage Individuel
Balcon NON
Terrasse NON
Murs mitoyens 2
Année de construction 2012
Financier
Prix de vente honoraires TTC inclus 162 000 €
Prix de vente honoraires TTC exclus 150 000 €
Honoraires TTC à la charge acquéreur 8 %
Taxe foncière annuelle 1 140 €
Energie
DPE GES
Copropriété
Copropriété OUI
nombre de lots 234
Autour du bien
  • Commerces et santé
  • Loisirs
  • Ecoles
  • Transports
  • Pratique
Contacter pour ce bien
L'agence
Téléphone 05 56 37 07 11
Adresse
190 Cours Gambetta 33400 Talence

* Champ obligatoire

Les informations recueillies sur ce formulaire sont enregistrées dans un fichier informatisé par La Boite Immo agissant comme Sous-traitant du traitement pour la gestion de la clientèle/prospects de l'Agence / du Réseau qui reste Responsable du Traitement de vos Données personnelles. La base légale du traitement repose sur l'intérêt légitime de l'Agence / du Réseau. Elles sont conservées jusqu'à demande de suppression et sont destinées à l'Agence / au Réseau. Conformément à la loi « informatique et libertés », vous disposez des droits d’accès, de rectification, d’effacement, d’opposition, de limitation et de portabilité de vos données. Vous pouvez retirer votre consentement à tout moment en contactant directement l’Agence / Le Réseau. Consultez le site https://cnil.fr/fr pour plus d’informations sur vos droits. Si vous estimez, après avoir contacté l'Agence / le Réseau, que vos droits « Informatique et Libertés » ne sont pas respectés, vous pouvez adresser une réclamation à la CNIL. Nous vous informons de l’existence de la liste d'opposition au démarchage téléphonique « Bloctel », sur laquelle vous pouvez vous inscrire ici : https://www.bloctel.gouv.fr Dans le cadre de la protection des Données personnelles, nous vous invitons à ne pas inscrire de Données sensibles dans le champ de saisie libre.
Ce site est protégé par reCAPTCHA, les Politiques de Confidentialité et les Conditions d'Utilisation de Google s'appliquent.

Découvrir nos outils